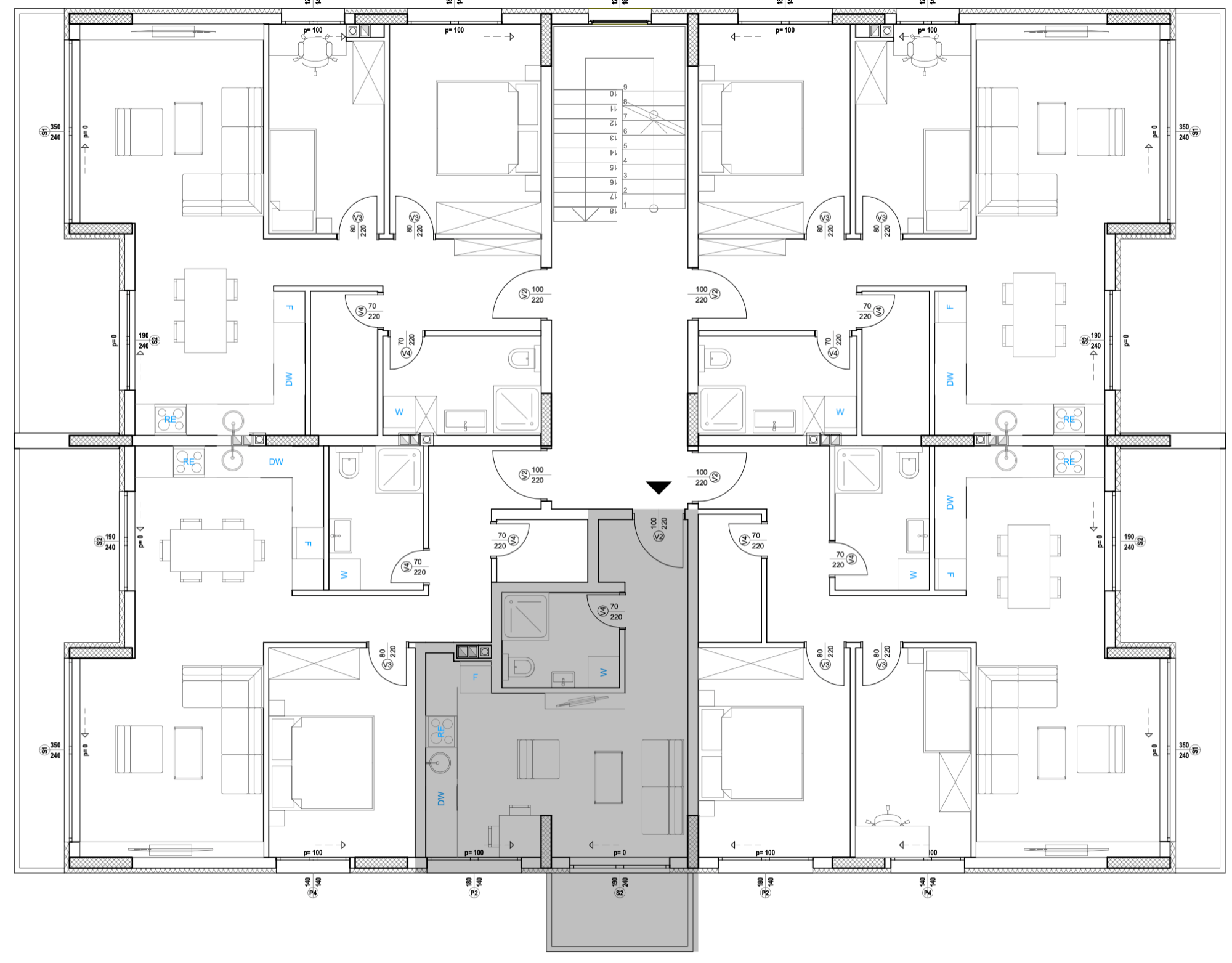
Stan br.5-Prodano!

- 29,00 m2
- Garsonjera
- 1.Kat strana parking
- Podno grijanje Vaillant
- Gree Klima
- SMART sistem
- Natkriveno parkirno mjesto
- Protuprovalna ulazna vrata
- Vrhunska hrastova unutarnja stolarija bez vidljivih beglama
- Sve sobe sa internet i TV utičnicama
- Video Portafon
- Instalacija zajednickog antenskog satelitskog sustava
- priprema za WiFi
-------------------------------------
- Vlasništvo je uredno 1/1, bez tereta.
- Datum useljenja: 04/2025
Stanovi su dizajnirani sa modernim i funkcionalnim rasporedom prostorija, a svaki stan ima svoj balkon i parkirno mjesto.
Pored toga, lokacija je idealna za one koji žele miran život u gradu sa svim njegovim sadržajima na dohvat ruke.
Kontaktirajte nas za više informacija na broj telefona
063 938 988
Zoran Stanić
4zidaodzak@gmail.com
Prilikom gradnje poštuju su najviši standardi kvalitete uz veliku posvećenost detaljima. Fasada će biti izvedena od stirpora 10 cm, dijelom sa ventiliranom fasadom austrijskog proizvođača Fundermax i termoizolacijom između betonske i fasadne konstrukcije sa kamenom vunom.
Podovi prostorija će biti obloženi kvalitetnim keramičkim pločicama italijanskog proizvođača Gres Porcellenato.
Stolarija PVC sa 6 komora Salamander BluEvolution 82 MD, aluminijske rolete, stakla troslojna s nisko energetskim premazom.
Podno grijanje Vaillant eloBlock u svim prostorijama. Hlađenje putem Klima Gree, mogućnost reguliranja temperature i putem aplikacije.
Stan br.6-Prodano!

- 73,89m2
- 3-soban
- 1.Kat
- Podno grijanje Vaillant
- Gree Klima
- SMART sistem
- Natkriveno parkirno mjesto
- Protuprovalna ulazna vrata
- Vrhunska hrastova unutarnja stolarija bez vidljivih beglama
- Sve sobe sa internet i TV utičnicama
- Video Portafon
- Instalacija zajednickog antenskog satelitskog sustava
- priprema za WiFi
-------------------------------------
- Vlasništvo je uredno 1/1, bez tereta.
- Datum useljenja: 04/2025
Stanovi su dizajnirani sa modernim i funkcionalnim rasporedom prostorija, a svaki stan ima svoj balkon i parkirno mjesto.
Pored toga, lokacija je idealna za one koji žele miran život u gradu sa svim njegovim sadržajima na dohvat ruke.
Kontaktirajte nas za više informacija na broj telefona
063 938 988
Zoran Stanić
4zidaodzak@gmail.com
Prilikom gradnje poštuju su najviši standardi kvalitete uz veliku posvećenost detaljima. Fasada će biti izvedena od stirpora 10 cm, dijelom sa ventiliranom fasadom austrijskog proizvođača Fundermax i termoizolacijom između betonske i fasadne konstrukcije sa kamenom vunom.
Podovi prostorija će biti obloženi kvalitetnim keramičkim pločicama italijanskog proizvođača Gres Porcellenato.
Stolarija PVC sa 6 komora Salamander BluEvolution 82 MD, aluminijske rolete, stakla troslojna s nisko energetskim premazom.
Podno grijanje Vaillant eloBlock u svim prostorijama. Hlađenje putem Klima Gree, mogućnost reguliranja temperature i putem aplikacije.
Stan br.7-Prodano!

- 73,79m2
- 3-soban
- 1.Kat
- Podno grijanje Vaillant
- Gree Klima
- SMART sistem
- Natkriveno parkirno mjesto
- Protuprovalna ulazna vrata
- Vrhunska hrastova unutarnja stolarija bez vidljivih beglama
- Sve sobe sa internet i TV utičnicama
- Video Portafon
- Instalacija zajednickog antenskog satelitskog sustava
- priprema za WiFi
-------------------------------------
- Vlasništvo je uredno 1/1, bez tereta.
- Datum useljenja: 04/2025
Stanovi su dizajnirani sa modernim i funkcionalnim rasporedom prostorija, a svaki stan ima svoj balkon i parkirno mjesto.
Pored toga, lokacija je idealna za one koji žele miran život u gradu sa svim njegovim sadržajima na dohvat ruke.
Kontaktirajte nas za više informacija na broj telefona
063 938 988
Zoran Stanić
4zidaodzak@gmail.com
Prilikom gradnje poštuju su najviši standardi kvalitete uz veliku posvećenost detaljima. Fasada će biti izvedena od stirpora 10 cm, dijelom sa ventiliranom fasadom austrijskog proizvođača Fundermax i termoizolacijom između betonske i fasadne konstrukcije sa kamenom vunom.
Podovi prostorija će biti obloženi kvalitetnim keramičkim pločicama italijanskog proizvođača Gres Porcellenato.
Stolarija PVC sa 6 komora Salamander BluEvolution 82 MD, aluminijske rolete, stakla troslojna s nisko energetskim premazom.
Podno grijanje Vaillant eloBlock u svim prostorijama. Hlađenje putem Klima Gree, mogućnost reguliranja temperature i putem aplikacije.
Stan br.8-Prodano!

- 73,79m2
- 3-soban
- 1.Kat put
- Podno grijanje Vaillant
- Gree Klima
- SMART sistem
- Natkriveno parkirno mjesto
- Protuprovalna ulazna vrata
- Vrhunska hrastova unutarnja stolarija bez vidljivih beglama
- Sve sobe sa internet i TV utičnicama
- Video Portafon
- Instalacija zajednickog antenskog satelitskog sustava
- priprema za WiFi
-------------------------------------
- Vlasništvo je uredno 1/1, bez tereta.
- Datum useljenja: 04/2025
Stanovi su dizajnirani sa modernim i funkcionalnim rasporedom prostorija, a svaki stan ima svoj balkon i parkirno mjesto.
Pored toga, lokacija je idealna za one koji žele miran život u gradu sa svim njegovim sadržajima na dohvat ruke.
Kontaktirajte nas za više informacija na broj telefona
063 938 988
Zoran Stanić
4zidaodzak@gmail.com
Prilikom gradnje poštuju su najviši standardi kvalitete uz veliku posvećenost detaljima. Fasada će biti izvedena od stirpora 10 cm, dijelom sa ventiliranom fasadom austrijskog proizvođača Fundermax i termoizolacijom između betonske i fasadne konstrukcije sa kamenom vunom.
Podovi prostorija će biti obloženi kvalitetnim keramičkim pločicama italijanskog proizvođača Gres Porcellenato.
Stolarija PVC sa 6 komora Salamander BluEvolution 82 MD, aluminijske rolete, stakla troslojna s nisko energetskim premazom.
Podno grijanje Vaillant eloBlock u svim prostorijama. Hlađenje putem Klima Gree, mogućnost reguliranja temperature i putem aplikacije.
Stan br.9-Prodano!

- 64,80 m2
- 2-soban
- 1.Kat put
- Podno grijanje Vaillant
- Gree Klima
- SMART sistem
- Natkriveno parkirno mjesto
- Protuprovalna ulazna vrata
- Vrhunska hrastova unutarnja stolarija bez vidljivih beglama
- Sve sobe sa internet i TV utičnicama
- Video Portafon
- Instalacija zajednickog antenskog satelitskog sustava
- priprema za WiFi
-------------------------------------
- Vlasništvo je uredno 1/1, bez tereta.
- Datum useljenja: 04/2025
Stanovi su dizajnirani sa modernim i funkcionalnim rasporedom prostorija, a svaki stan ima svoj balkon i parkirno mjesto.
Pored toga, lokacija je idealna za one koji žele miran život u gradu sa svim njegovim sadržajima na dohvat ruke.
Kontaktirajte nas za više informacija na broj telefona
063 938 988
Zoran Stanić
4zidaodzak@gmail.com
Prilikom gradnje poštuju su najviši standardi kvalitete uz veliku posvećenost detaljima. Fasada će biti izvedena od stirpora 10 cm, dijelom sa ventiliranom fasadom austrijskog proizvođača Fundermax i termoizolacijom između betonske i fasadne konstrukcije sa kamenom vunom.
Podovi prostorija će biti obloženi kvalitetnim keramičkim pločicama italijanskog proizvođača Gres Porcellenato.
Stolarija PVC sa 6 komora Salamander BluEvolution 82 MD, aluminijske rolete, stakla troslojna s nisko energetskim premazom.
Podno grijanje Vaillant eloBlock u svim prostorijama. Hlađenje putem Klima Gree, mogućnost reguliranja temperature i putem aplikacije.









